Grasmere Road, South Norwood, London
Full Details
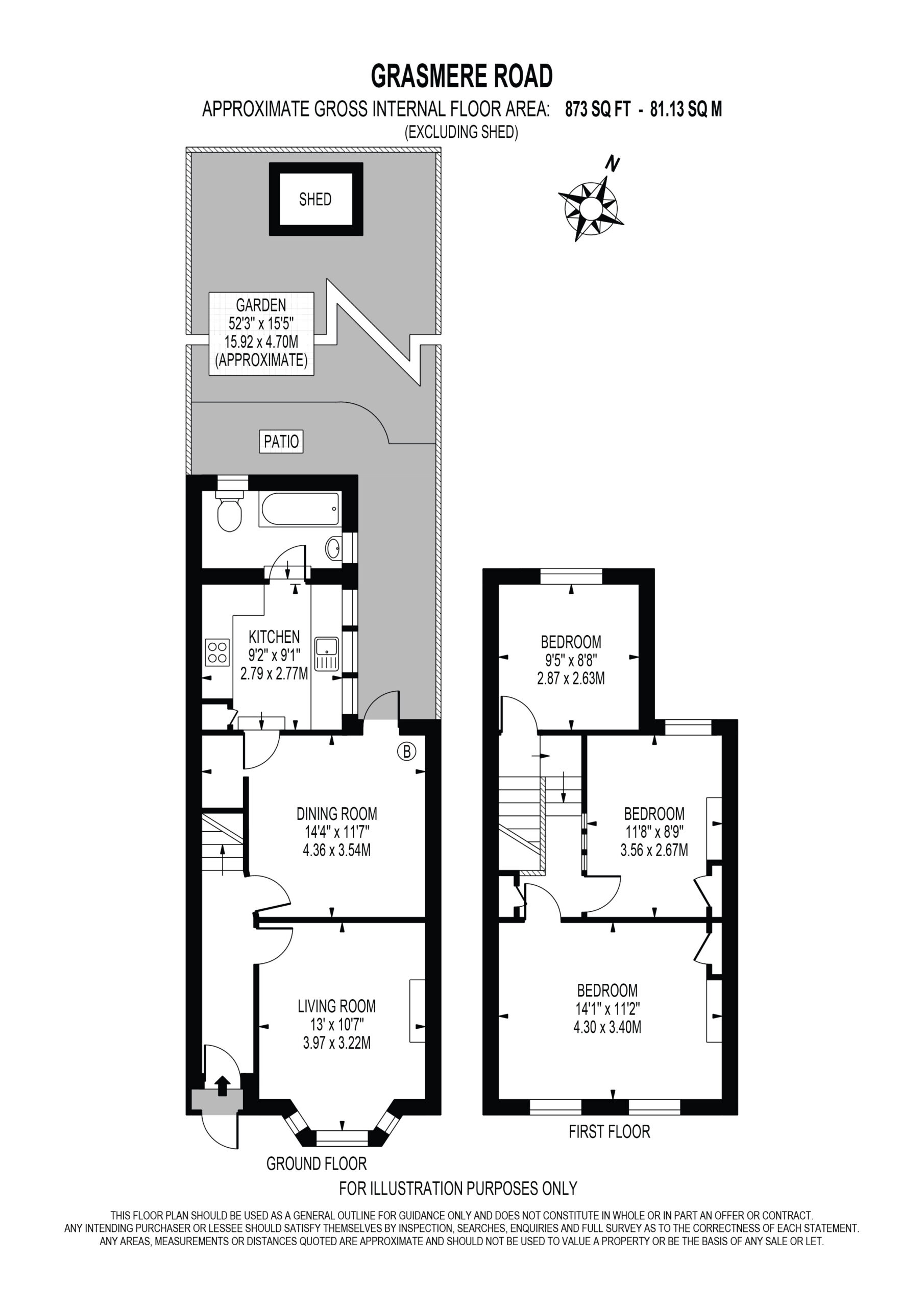
This Victorian terrace benefits from an impressive 873 sq. ft. of living space and briefly comprises; three well-proportioned bedrooms, 2 double reception rooms, modern family bathroom suite, and a contemporary fitted kitchen with integrated appliances and an easy to maintain garden.
Perfectly suited for commuters, the trains departing from Norwood Junction will seamlessly transport you into The City and beyond, including both London Victoria and a direct connection into London Bridge with arena tram stop only a few minutes walk away too.
You can travel as far afield as Highbury & Islington via trendy Shoreditch High Street without needing to change services on the London Overground. East Croydon station is only one stop away, meaning you can access pretty much anywhere else in the world in the opposite direction, via the Gatwick Express into Gatwick Airport.
In addition to the excellent transport links, Grasmere Road is also positioned close to a diverse selection of well-regarded and popular local amenities on both Portland Road and South Norwood, and Addiscombe High Street
Local residents can enjoy tasty and refreshing food and drinks served by both independently owned boutiques and popular large franchises including the effervescent Shelverdine Goathouse, The Craft Beer Cabin and Mamma Dough.
Stroll to the end of the road and find yourself in The Country Park and Norwood Lakes, providing an expansive, scenic, and peaceful place to exercise, wander and relax.































