Archer Road, South Norwood, London
Property Summary
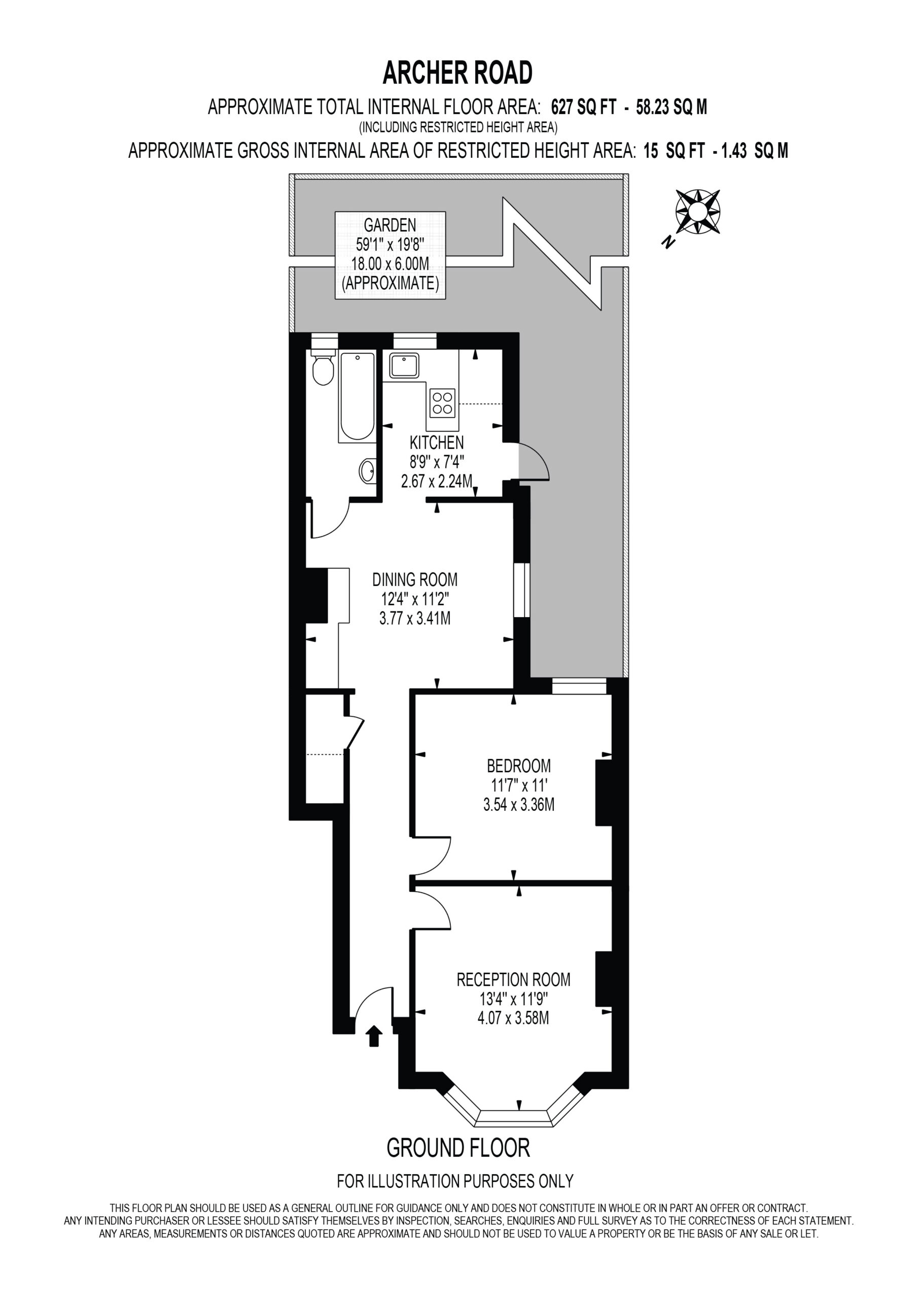
Full Details
Offered to the market chain free, this property has recently been redecorated, benefits from an impressive 627 sq. ft. of living space and briefly comprises; one double bedroom, spacious reception room, open plan kitchen/diner, bathroom suite, kitchen with integrated appliances and direct access to a communal garden.
There is the potential to configure this property into a two bedroom and use the dining room as the living room and then you have two big bedrooms.
Archer Road further benefits from; a brand new Worcester boiler, with a fully pumped and cleaned system with a magnetic cleaning device fitted for better maintenance. A 6 foot perimeter fence has been installed around the back garden, brand new bathroom and all the bathroom units are newly installed. The floors have been newly sanded and varnished throughout, new double glazing panels installed, new pipework under the bathroom - running to the front door. Walls, ceiling and woodwork have been filled and all painted costing in the region of £25,000.
Perfectly suited for commuters, the trains departing from Norwood Junction will seamlessly transport you into The City and beyond, including both London Victoria and a direct connection into London Bridge.
You can travel as far afield as Highbury & Islington via trendy Shoreditch High Street without needing to change services on the London Overground. East Croydon station is only one stop away, meaning you can access pretty much anywhere else in the world in the opposite direction, via the Gatwick Express into Gatwick Airport.
In addition to the excellent transport links, Archer Road is also positioned close to a diverse selection of well-regarded and popular local amenities on both Portland Road and South Norwood High Street.
Local residents can enjoy tasty and refreshing food and drinks served by both independently owned boutiques and popular large franchises including the effervescent Craft Beer Cabin and Mamma Dough.
A stone throw away is The Country Park and Norwood Lakes, providing an expansive, scenic, and peaceful place to exercise, wander and relax.

















