Cargreen Road, South Norwood, London
Property Summary
Full Details
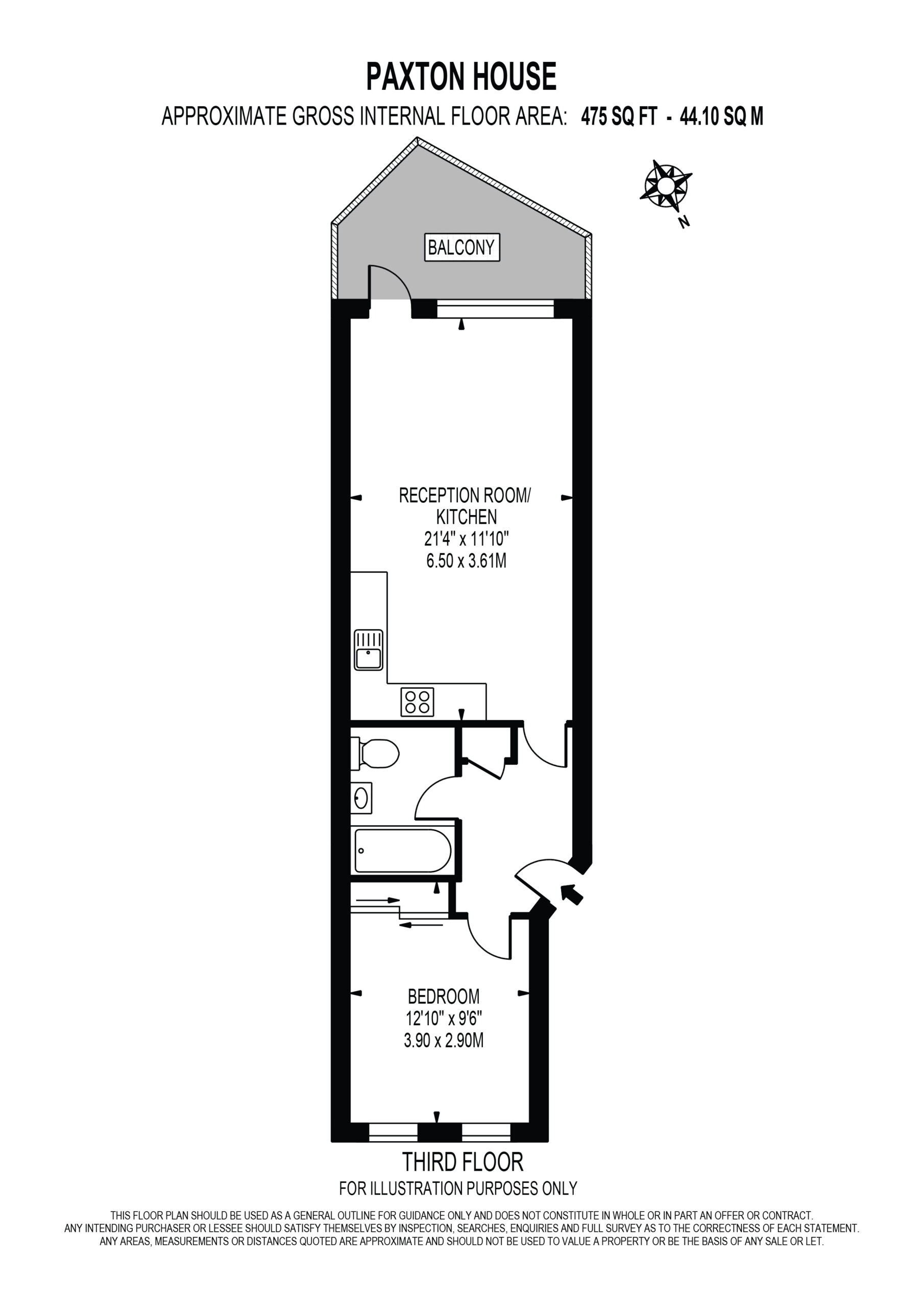
Paxton House is offered to the market chain free, benefits from 475 sq. ft. of living space and briefly comprises; one double bedroom, spacious living room, modern bathroom suite, contemporary fitted kitchen and your own private balcony.
Being a stones through from Norwood Junction, this property is perfectly suited for commuters and will seamlessly transport you into The City and beyond, including both London Victoria and a direct 12-minute connection into London Bridge.
You can travel as far afield as Highbury & Islington via trendy Shoreditch High Street without needing to change services on the London Overground. East Croydon station is only one stop away, meaning you can access pretty much anywhere else in the world in the opposite direction, via the Gatwick Express into Gatwick Airport.
In addition to the excellent transport links, the property is also positioned close to a diverse selection of well-regarded and popular local amenities on both Portland Road and South Norwood High Street.
Local residents can enjoy tasty and refreshing food and drinks served by both independently owned boutiques and popular large franchises including the effervescent The Craft Beer Cabin and Mamma Dough.
The Country Park and Norwood Lakes are a short stroll away, providing an expansive, scenic, and peaceful place to exercise, wander and relax.















