Chatsworth Road, Croydon, Surrey
Property Summary
Full Details
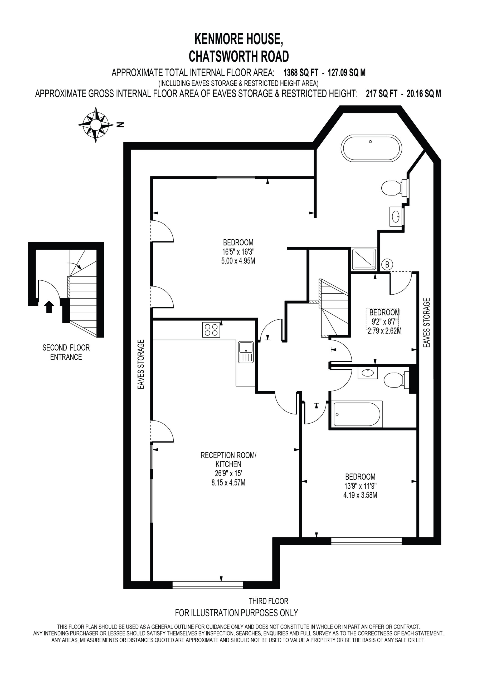
Chatsworth Road benefits from 1368 sq. ft. of living space and briefly comprises; three-bedrooms, two-bathrooms, open plan living/dining area with modern fitted kitchen and an off-street parking space.
Chatsworth Road is ideal for anybody requiring access into The City due its proximity to East Croydon station. East Croydon station offers Thameslink services to London Bridge, London Blackfriars, Farringdon & St. Pancras, with Southern services to London Victoria and London Gatwick, while also being at the centre of the London Tramlink line, with trams to Wimbledon, Beckenham & Addington.
Chatsworth Road is also perfectly positioned to enjoy all that Croydon has to offer. The town centre is nearby and is home to House of Fraser, Marks and Spencer and many other popular retail outfits. Boxpark is situated close by and is packed with effervescent local residents and commuters devouring tasty and refreshing food and drinks served by both independently owned boutiques and popular large franchises.
We thoroughly recommend contacting us at the earliest opportunity to avoid disappointment.

















