Edward Road, East Croydon, Surrey
Property Summary
Full Details
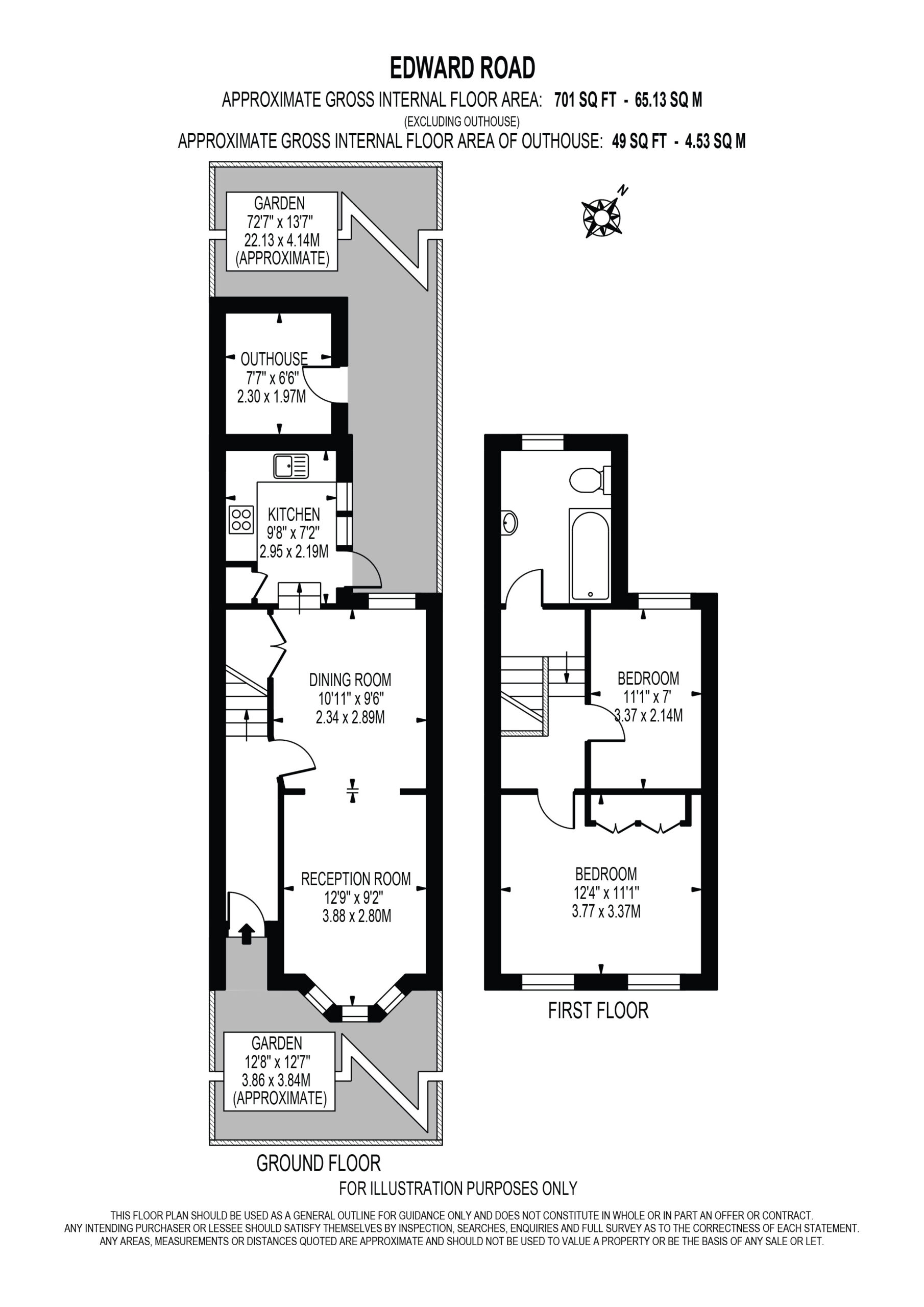
Lovingly maintained by the current owner, the property is ready for immediate occupation and finished to a high standard throughout. The accommodation comprises two generous double bedrooms, a stylish modern bathroom, and a spacious through lounge and dining area showcasing attractive period features. A sleek, well-equipped kitchen sits to the rear, complemented by a separate outdoor utility space. The property further benefits from a stunning, well-kept garden, perfect for relaxing or entertaining.
Ideally suited for commuters, Edward Road is conveniently located within easy reach of East Croydon station, providing fast and direct links to London Victoria and London Bridge, as well as Gatwick Airport and Brighton. Sandilands tram stop is also just a short walk away, offering excellent connections to Croydon town centre, Wimbledon, and Beckenham.
The property is perfectly positioned close to a wide range of local amenities, including Boxpark, and both the Whitgift and Centrale shopping centres.
With strong interest anticipated, early viewing is highly recommended to fully appreciate all this exceptional home has to offer.



















