Exeter Road, East Croydon, Surrey
Full Details
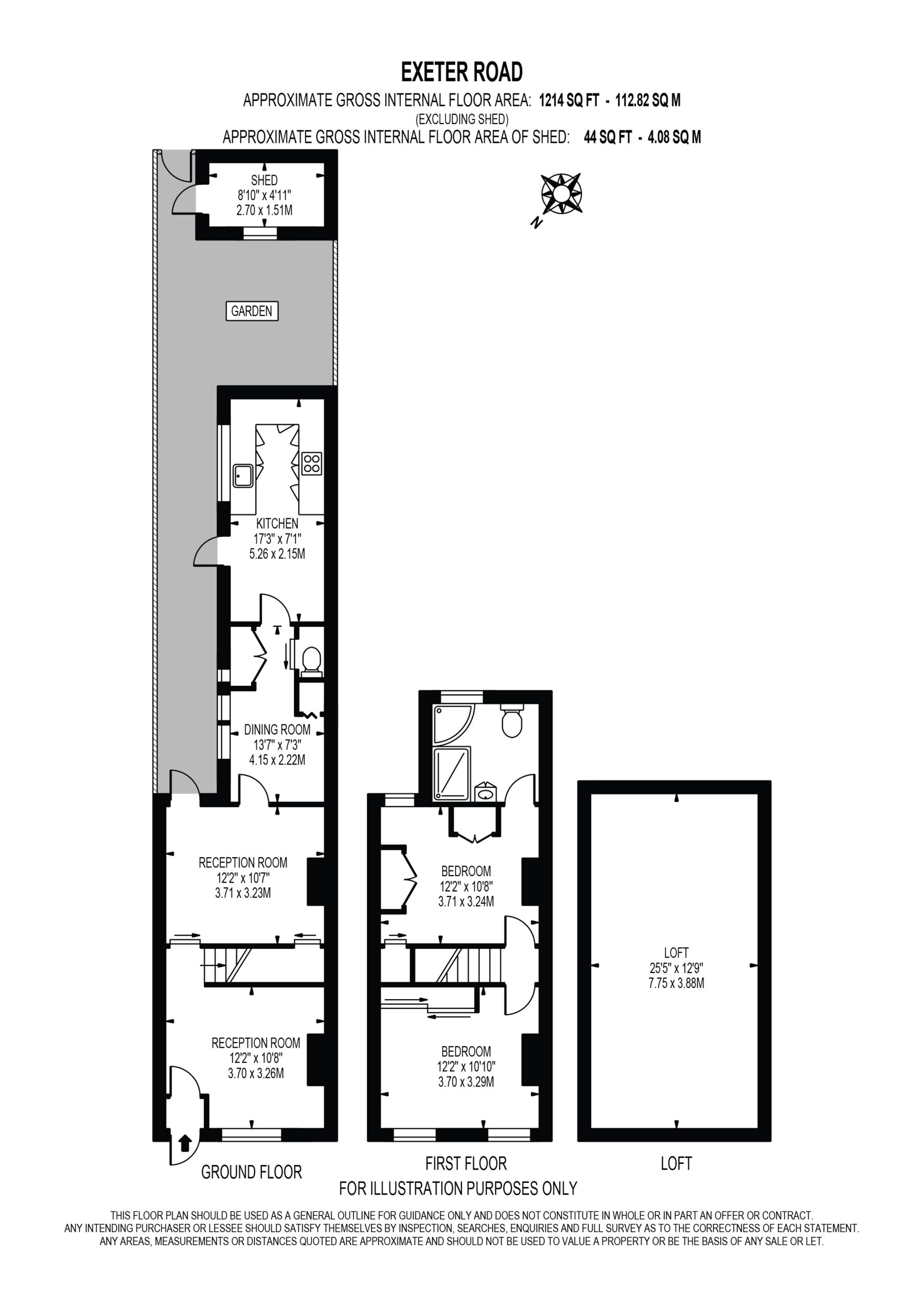
This property is perfect for someone looking to add their own stamp, benefits from an impressive 1,214 sq. ft. of living space and briefly comprises; two double bedrooms, bathroom suite, two spacious reception rooms, separate dining room, downstairs w/c and kitchen that leads out on to the easy to maintain garden.
Exeter Road further benefits from loft space and a shed to the rear providing ample storage.
This wonderful property would suit any commuter requiring access into The City due its close proximity to East Croydon station and a number of local tram stops and bus routes. East Croydon station will provide you with direct access into London Victoria, London Bridge and Clapham Junction in one direction and Gatwick Airport and Brighton in the other.
There is also a number of well-regarded local amenities and popular schools located nearby.
With demand naturally expected to be high, we thoroughly recommend an internal viewing to avoid disappointment and to fully comprehend just how wonderful this home really is.





















