Gleneagle Road, Streatham, London
Property Summary
Full Details
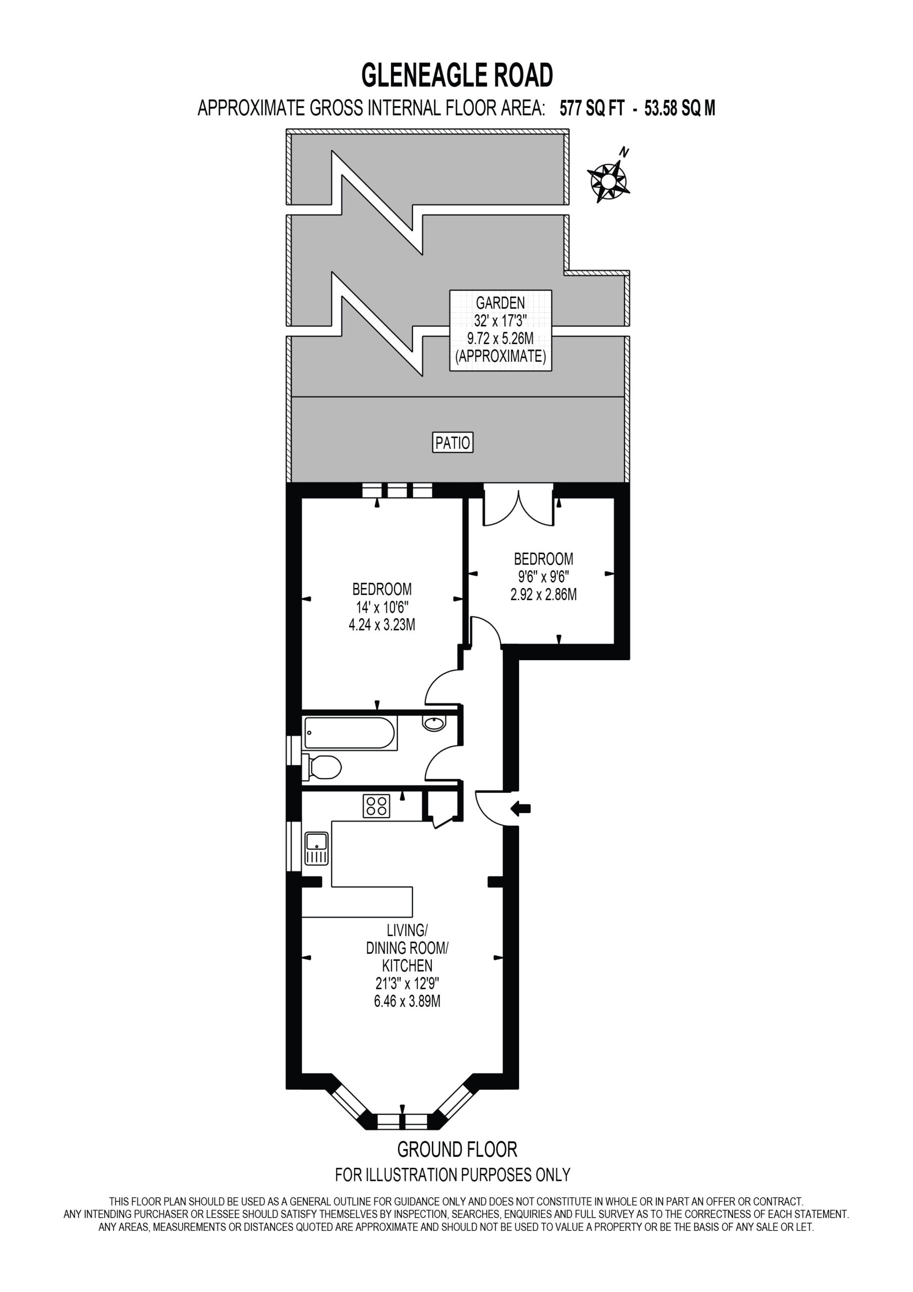
Two well-proportioned bedrooms, separate living room and the private roof terrace, providing a picturesque setting for al fresco dining or soaking up the sun. The modern kitchen features sleek countertops, ample storage space, and top-of-the-line appliances.
With its desirable location in Gleneagle Road, you'll have a range of local amenities right at your doorstep. You'll find an array of local shops, boutiques, and supermarkets, making grocery runs a breeze. The neighborhood offers a diverse selection of restaurants, cafes, and bars, catering to every taste and craving. Nature enthusiasts will appreciate the nearby green spaces of Tooting Common and Streatham Common providing tranquil settings for leisurely walks or picnics. Transport links are excellent, with several bus routes and the Gleneagle Road station within easy reach, ensuring easy access to the wider city.
In summary, this 2-bedroom property on Gleneagle Road offers a modern and comfortable living space complemented by a delightful roof terrace. With its convenient location and a wealth of local amenities, this property presents an ideal opportunity for those looking to immerse themselves in the vibrant community of SW16. Don't miss out on the chance to make this your new home.



















