Hambrook Road, South Norwood, London
Property Summary
Full Details
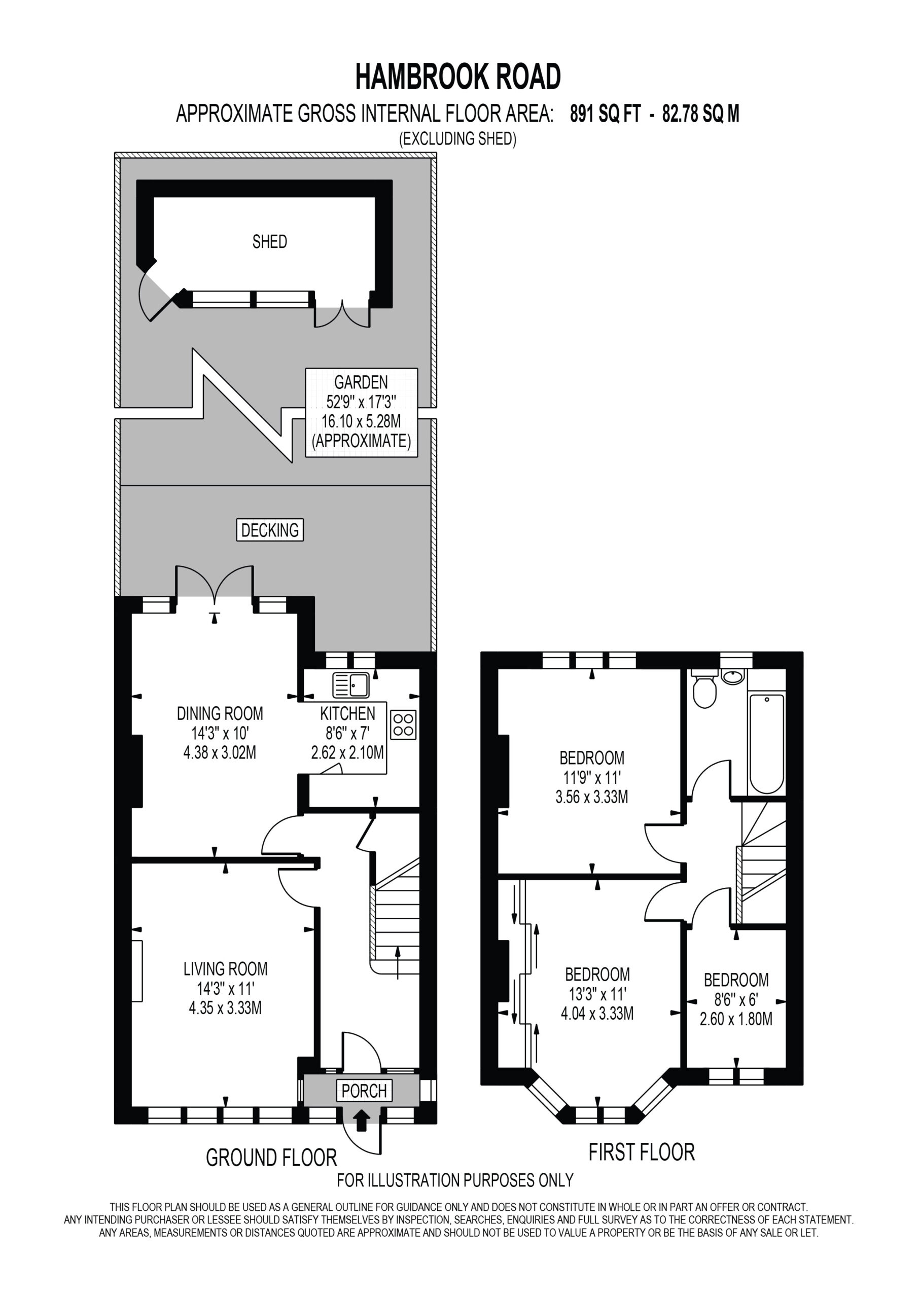
The property offers a well-balanced layout throughout and comprises a spacious reception room to the front, an open plan kitchen diner at the rear which opens onto the private garden with decking, lawn and a useful summer house /shed, making it ideal for both entertaining and everyday family use.
Arranged over the first floor are three bedrooms, including two well-proportioned doubles and a third single bedroom, alongside a contemporary, family bathroom.
Further benefits include approximately 891 sq. ft. of internal space (excluding summer house / shed), double glazing throughout and a welcoming front porch.
The property's location couldn’t get any better as Harrington Road tram stop is a stone’s throw away and is situated close to Norwood Junction, Birbeck and Elmer's End stations. These stations have direct services into London Bridge (12 mins), Charing Cross (32 mins) and London Victoria (28 mins). You can travel as far afield as Highbury & Islington via trendy Shoreditch High Street without needing to change services on the London Overground. East Croydon station is only one stop away, meaning you can access pretty much anywhere else in the world in the opposite direction, via the Gatwick Express into Gatwick Airport.
In addition to the excellent transport links, the property is also positioned close to a diverse selection of well-regarded and popular local amenities on both Portland Road and South Norwood High Street. Local residents can enjoy tasty and refreshing food and drinks served by both independently owned boutiques, brunch and coffee shops, and popular large franchises including the effervescent Shelverdine Goathouse, The Craft Beer Cabin and Mamma Dough.
Stroll to the end of the road and find yourself in The Country Park, a nature reserve providing an expansive, scenic and peaceful place to exercise, wander and relax.
As the demand is high for this property, please contact us now to be booked in on the open day and avoid disappointment.























