Kingsmead Avenue, Mitcham
Property Summary
Full Details
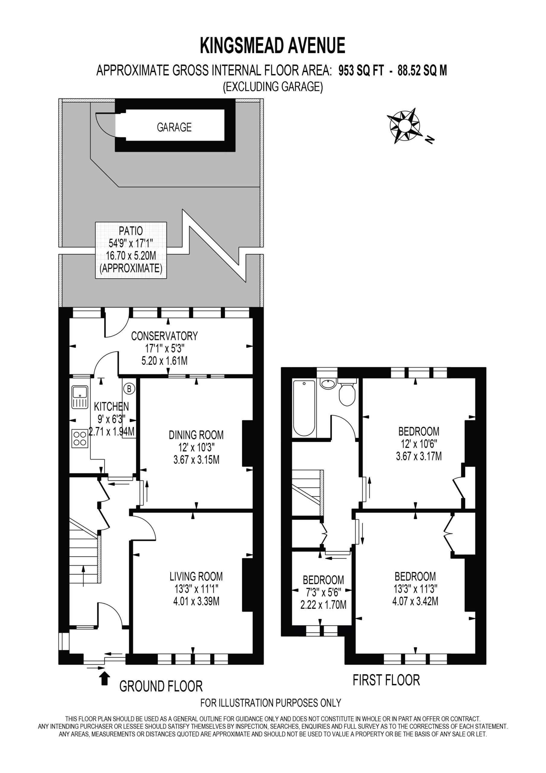
Located in a popular residential area in Mitcham and at the foot of Streatham Vale, this well presented three-bedroom terraced house offers generous living space and exciting potential to extend (STPP).
The ground floor features a separate living room and dining room, offering flexible living space perfect for family life and entertaining. A well- appointed kitchen leads onto a bright and airy conservatory, which opens onto a private patio area and a generous rear garden, complete with access to a garage. Upstairs, the property comprises two double bedrooms, a single bedroom, and a family bathroom.
The house also benefits from a recently installed boiler and new radiators.
Chain free, and ideal for first-time buyers or growing families looking to upsize, the property is within walking distance of Mitcham Eastfield and Streatham Common stations, offering direct access to Central London via Claphan Junction, London Bridge and Victoria. Kingsmead Avenue is also situated close to popular local schools including Woolensterne and Granton, and just a short distance from shops, bars, and restaurants of Streatham Vale.
This is a rare opportunity to acquire a versatile and well-located home in one of Mitcham's most sought- after pockets.
Viewings highly recommended.























