Oval Road, East Croydon, Surrey
Full Details
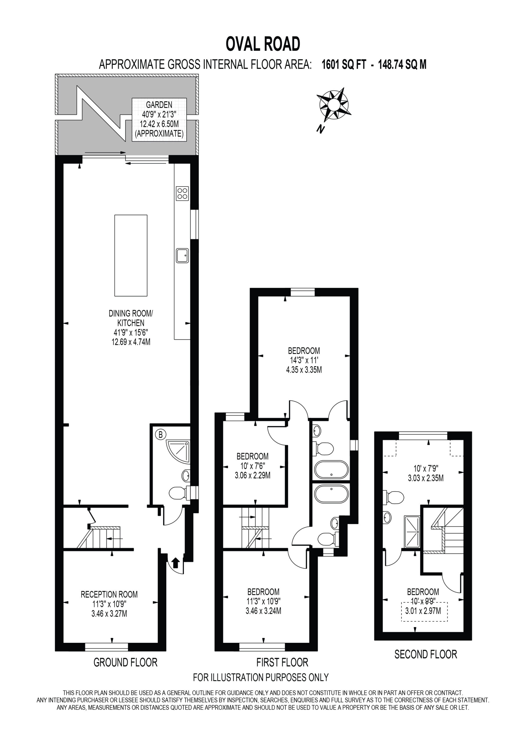
Spread across three floors, the home has been meticulously refurbished to a high standard. The upper levels feature four spacious double bedrooms, two of which benefit from luxurious en-suite bathrooms, complemented by an additional modern family bathroom.
The ground floor offers an elegant front reception room, a contemporary shower room, and a breathtaking open-plan kitchen and dining area. This space boasts high-quality integrated appliances, stylish finishes, and bi-fold doors that open seamlessly onto a beautifully maintained garden, perfect for entertaining and family life. The property also benefits from off-street parking.
Ideally positioned for commuters, Oval Road is just a short walk from East Croydon Station, providing fast and frequent services to London Bridge, London Victoria, Clapham Junction, and beyond. Gatwick Airport can be reached in under 20 minutes, making this an excellent choice for frequent travellers.
The home is also within easy reach of highly regarded schools, an array of local amenities, and the vibrant Croydon Town Centre and Boxpark.
Given its prime location and impeccable condition, early viewing is highly recommended to avoid disappointment.























