Perran Road, Tulse Hill, London
Full Details
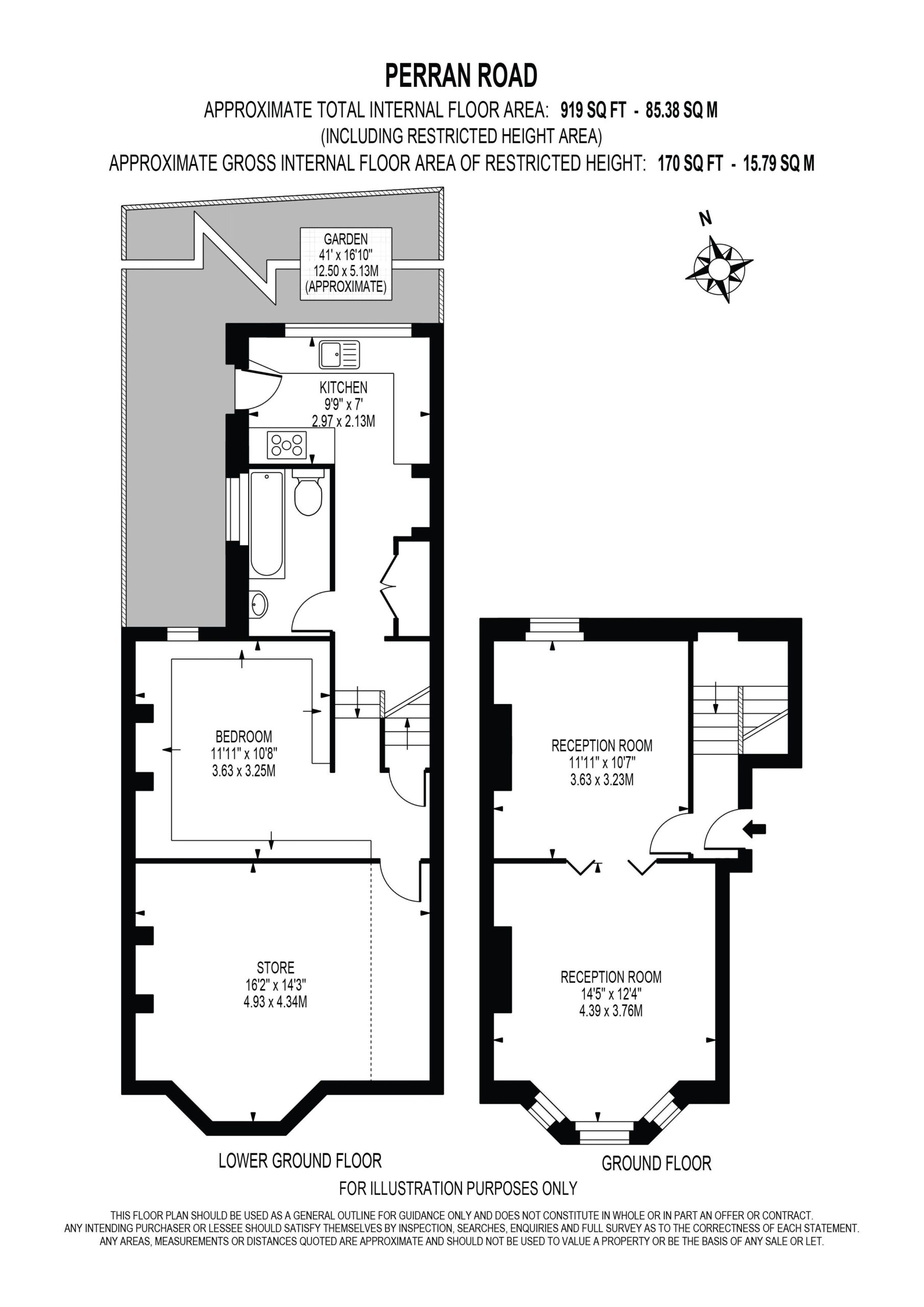
Offered to the market with no onward chain Perran Road benefits from just under 2000 sq. ft. of internal space comprising; an entrance hall, a glorious double reception bathed in natural light, spacious kitchen which leads onto a utility room, four adequately sized bedrooms, two bathrooms, a beautifully crafted rear garden and truly unique basement for which the opportunities are endless.
Perran Road is renowned not just for its convenient proximity to Tulse Hill Station but also for the showcased period features within the properties. The property offers a unique proposition for a purchaser to create their dream property, whilst taking full advantage of the character and charm.
For those who aren’t aware, Perran Road is one of the crown jewels of Tulse Hill. Situated 0.2 Miles from Tulse Hill Station with links into London Bridge & Farringdon. As well as being walking distance to the illustrious Brockwell Park. We thoroughly recommend contacting us at the earliest opportunity to avoid disappointment.



















