Selhurst Road, South Norwood, London, Greater London
- Ref: OAKS3497
- Type: Upper Floor Flat
- Availability: Exchanged
- Bedrooms: 1
- Bathrooms: 1
- Reception Rooms: 1
- Tenure: Share of Freehold
- PROPERTY SUMMARY: Oaks Estate Agents are delighted to present an exceptional one-bedroom top floor apartment situated in the highly sought-after area of Selhurst.
Exquisitely finished throughout, this exceptional property provides the perfect blend for anybody seeking a combination of rich character and a slice of modern day living.
Set within the confines of a vast period property and benefitting from an impressive 574 sq. ft. of living space, Selhurst Road is ready for occupancy and available to view today.
As you enter the property, you will be greeted by a spacious landing that leads onto double bedroom, contemporary bathroom suite and a modern fully fitted kitchen complete with integrated appliances/reception room that is the ideal space for entertaining guests.
One of the standout features of the property is the large private balcony providing a tranquil escape from the hustle and bustle of city life. The additional communal garden is also perfect for al fresco dining, entertaining guests or simply relaxing in the sunshine.
Located in the heart of Selhurst, this property is conveniently situated for access to local amenities, excellent transport links into the City via both Selhurst and Norwood Junction, and a host of green spaces, including South Norwood Lakes.
This beautiful property is a rare gem in Selhurst, offering a unique blend of modern living and period charm, and is perfect for families or professionals seeking a stylish and comfortable home.
We recommended contacting us at your earliest convenience to avoid missing out.
-
Request Viewing
Request Viewing
Please complete the form below and a member of staff will be in touch shortly.
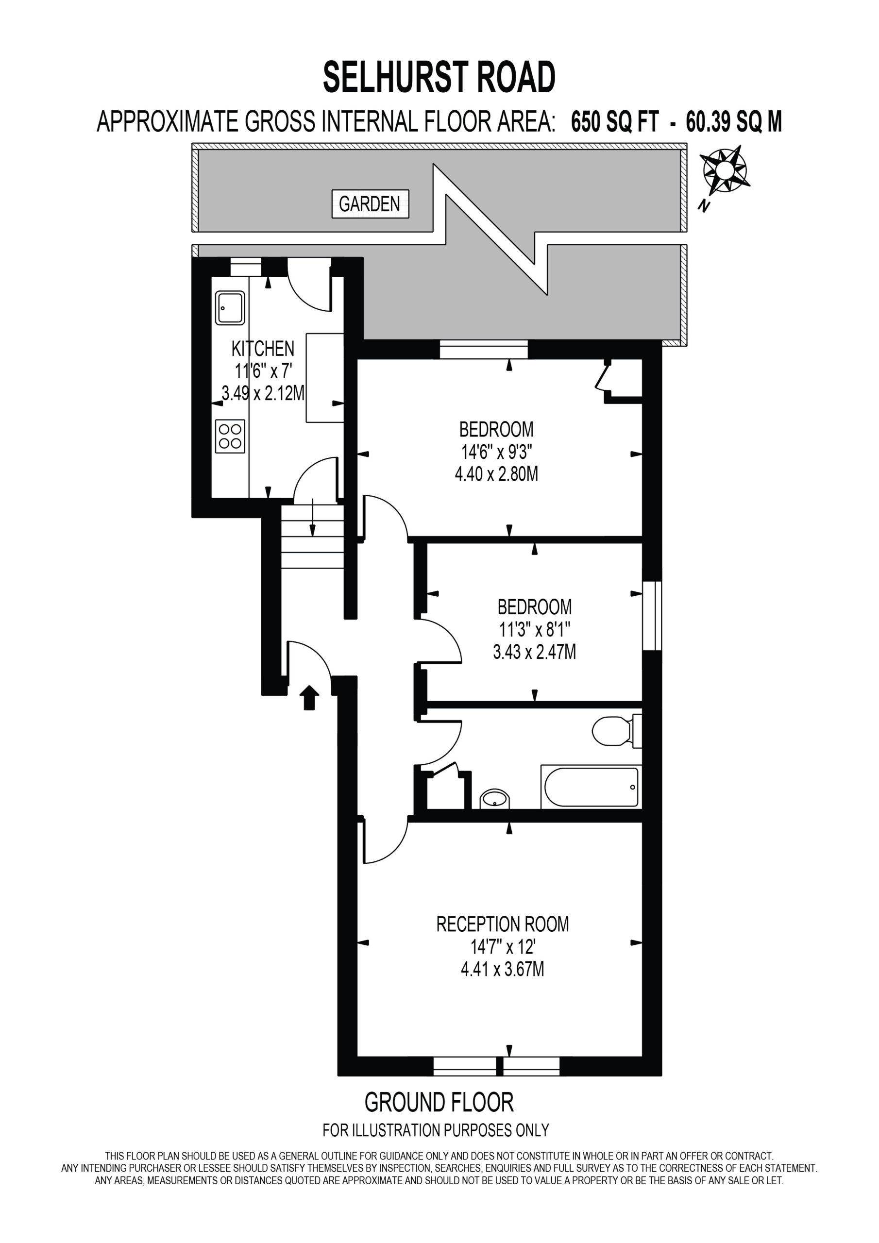
- FloorPlan
Property Summary
Exquisitely finished throughout, this exceptional property provides the perfect blend for anybody seeking a combination of rich character and a slice of modern day living.
Set within the confines of a vast period property and benefitting from an impressive 574 sq. ft. of living space, Selhurst Road is ready for occupancy and available to view today.
As you enter the property, you will be greeted by a spacious landing that leads onto double bedroom, contemporary bathroom suite and a modern fully fitted kitchen complete with integrated appliances/reception room that is the ideal space for entertaining guests.
One of the standout features of the property is the large private balcony providing a tranquil escape from the hustle and bustle of city life. The additional communal garden is also perfect for al fresco dining, entertaining guests or simply relaxing in the sunshine.
Located in the heart of Selhurst, this property is conveniently situated for access to local amenities, excellent transport links into the City via both Selhurst and Norwood Junction, and a host of green spaces, including South Norwood Lakes.
This beautiful property is a rare gem in Selhurst, offering a unique blend of modern living and period charm, and is perfect for families or professionals seeking a stylish and comfortable home.
We recommended contacting us at your earliest convenience to avoid missing out.
Full Details
Oaks Estate Agents are delighted to present an exceptional one-bedroom top floor apartment situated in the highly sought-after area of Selhurst.
Exquisitely finished throughout, this exceptional property provides the perfect blend for anybody seeking a combination of rich character and a slice of modern day living.
Set within the confines of a vast period property and benefitting from an impressive 574 sq. ft. of living space, Selhurst Road is ready for occupancy and available to view today.
As you enter the property, you will be greeted by a spacious landing that leads onto double bedroom, contemporary bathroom suite and a modern fully fitted kitchen complete with integrated appliances/reception room that is the ideal space for entertaining guests.
One of the standout features of the property is the large private balcony providing a tranquil escape from the hustle and bustle of city life. The additional communal garden is also perfect for al fresco dining, entertaining guests or simply relaxing in the sunshine.
Located in the heart of Selhurst, this property is conveniently situated for access to local amenities, excellent transport links into the City via both Selhurst and Norwood Junction, and a host of green spaces, including South Norwood Lakes.
This beautiful property is a rare gem in Selhurst, offering a unique blend of modern living and period charm, and is perfect for families or professionals seeking a stylish and comfortable home.
We recommended contacting us at your earliest convenience to avoid missing out.

























