Sundridge Road, Addiscombe, Surrey
Full Details
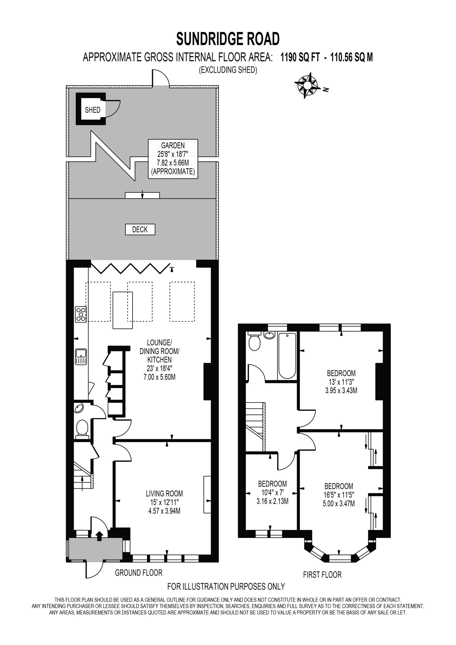
Offered to the market with no onward chain, this property features three well-proportioned bedrooms, a large family bathroom, and two spacious reception rooms rich in period charm. The generous kitchen leads to a conservatory with access to a sunny garden.
Additional benefits include ample storage, period features throughout, and significant potential to extend (STPP).
This charming home is ideal for commuters, thanks to its close proximity to East Croydon station and several local tram stops. East Croydon station offers direct links to London Victoria, London Bridge, and Clapham Junction, while also providing easy access to Gatwick Airport and Brighton.
Additionally, the property is conveniently located near a wide range of popular amenities on Lower Addiscombe Road, as well as a number of highly regarded local schools.



















