Sydenham Road, Croydon, Surrey
Property Summary
Full Details
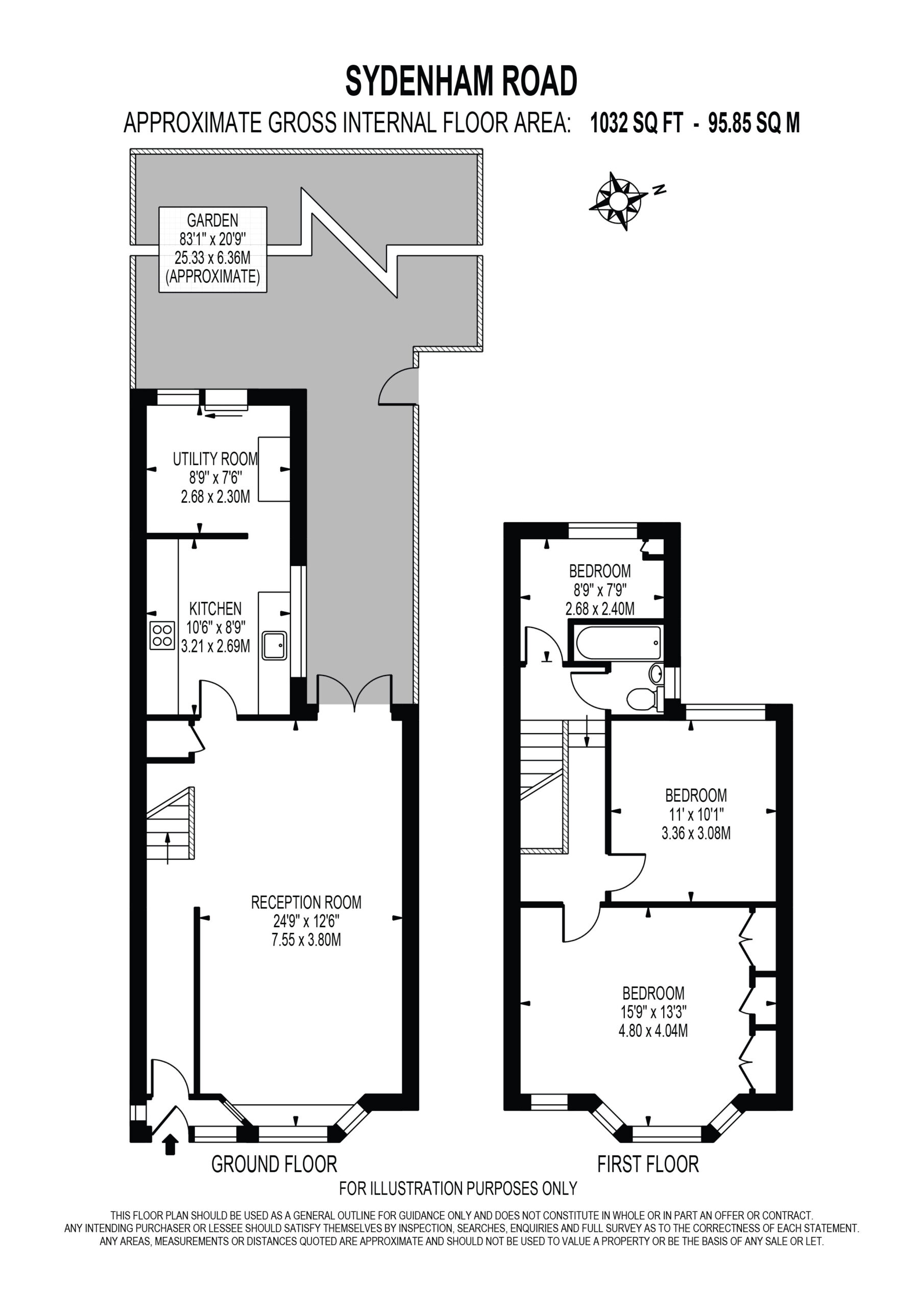
Offering approximately 1,032 sq ft of well designed internal living space, this impressive property features three generously sized bedrooms, including a spacious principal bedroom complete with stylish built in wardrobes. A well appointed family bathroom serves the first floor.
On the ground floor, the property boasts a bright and airy through lounge, flooded with natural light from the elegant front bay window and rear French doors. The modern fitted kitchen sits to the rear and is complemented by a practical utility room, providing additional storage and workspace.
The rear garden is a particular highlight, a substantial and beautifully maintained outdoor space, perfect for relaxing, entertaining, or enjoying time with family. The property also benefits from convenient side access.
Perfectly suited to commuters, the home is within easy reach of East Croydon railway station, offering fast and frequent services into central London, including London Victoria, London Bridge, London Blackfriars and London St Pancras International. The Gatwick Express also provides direct links to Gatwick Airport, making international travel effortlessly accessible.
Residents will also enjoy close proximity to a wide range of local amenities, including the vibrant Boxpark Croydon and the historic Surrey Street Market, one of London’s oldest street markets.
Early viewing is highly recommended to fully appreciate all that this fantastic home has to offer.























