Tylecroft Road, Norbury, London
Full Details
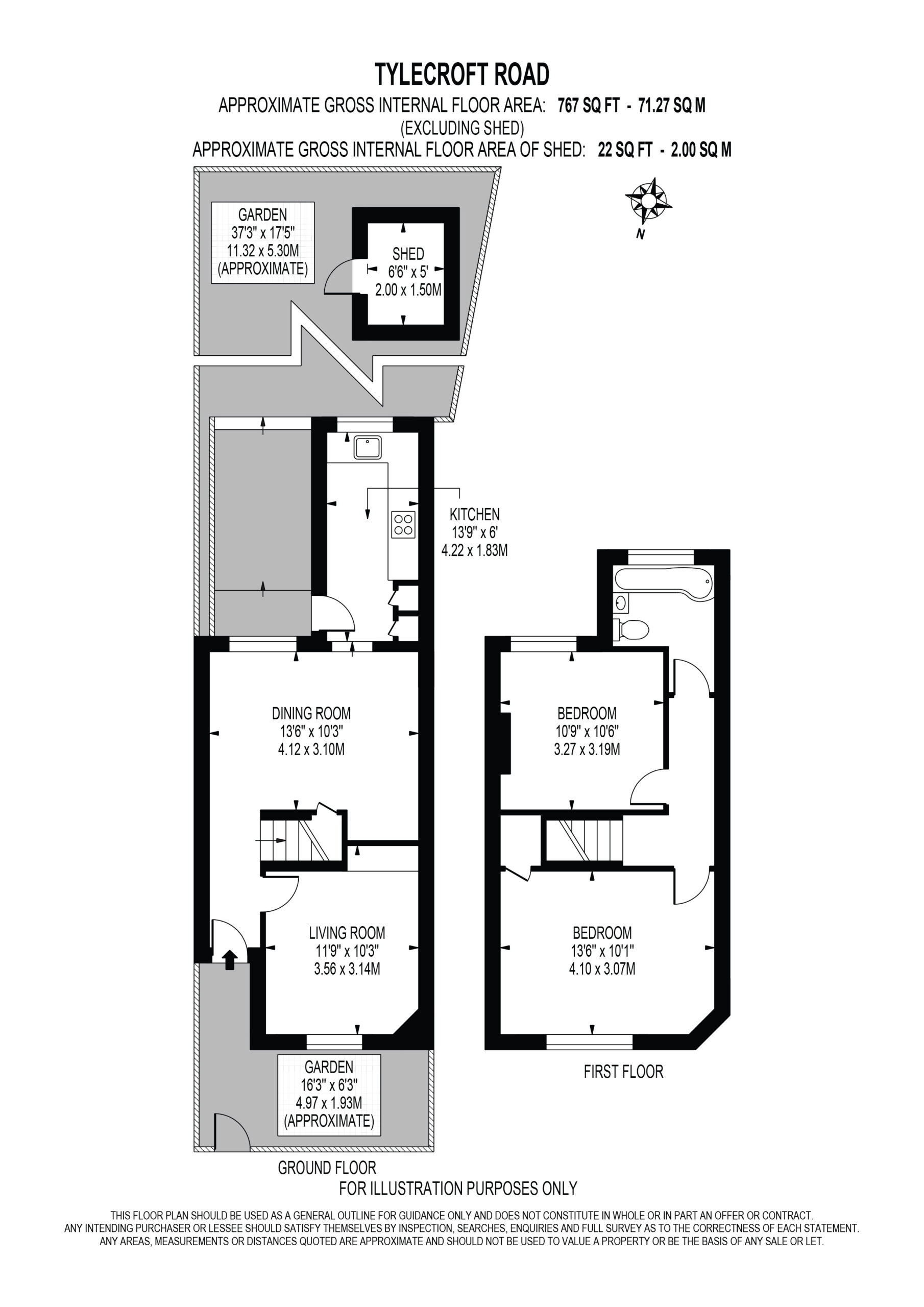
Light and airy throughout, the property has been finished to a high standard and comprises two well-proportioned bedrooms, a spacious living room, a stylish family bathroom, and well sized kitchen, leading onto a decked sunny rear garden. The house also benefits from excellent storage, including a recently floored and easily accessible loft space.
Tylecroft Road is a quiet, wide street on the Streatham/Norbury borders, making it an ideal choice for commuters. Both Norbury and Streatham Common stations are within easy reach, offering direct links to Clapham Junction, Victoria, and London Bridge.
The property is also conveniently located just a short walk from several green spaces, including Norbury Hall Park, Northborough Park, and Norbury Park. The wide, open landscapes of Streatham Common are a short bus ride away, along with the array of shops, bars, and restaurants on Streatham High Road, including the well-regarded Bull and Railway pubs.

















