Woodbourne Close, Streatham, London
Property Summary
This wonderful home benefits from a number of great features including a garage and vast internal storage. Large windows flood the property with natural light throughout. This home is ideally located between Streatham and Streatham Hill stations with direct access to Clapham Junction, Balham, London Victoria, and London Bridge.
The shops, bars and restaurants of Streatham High Road are within easy reach of the property as are the wide, open, and leafy spaces of both Tooting and Streatham Common.
Full Details
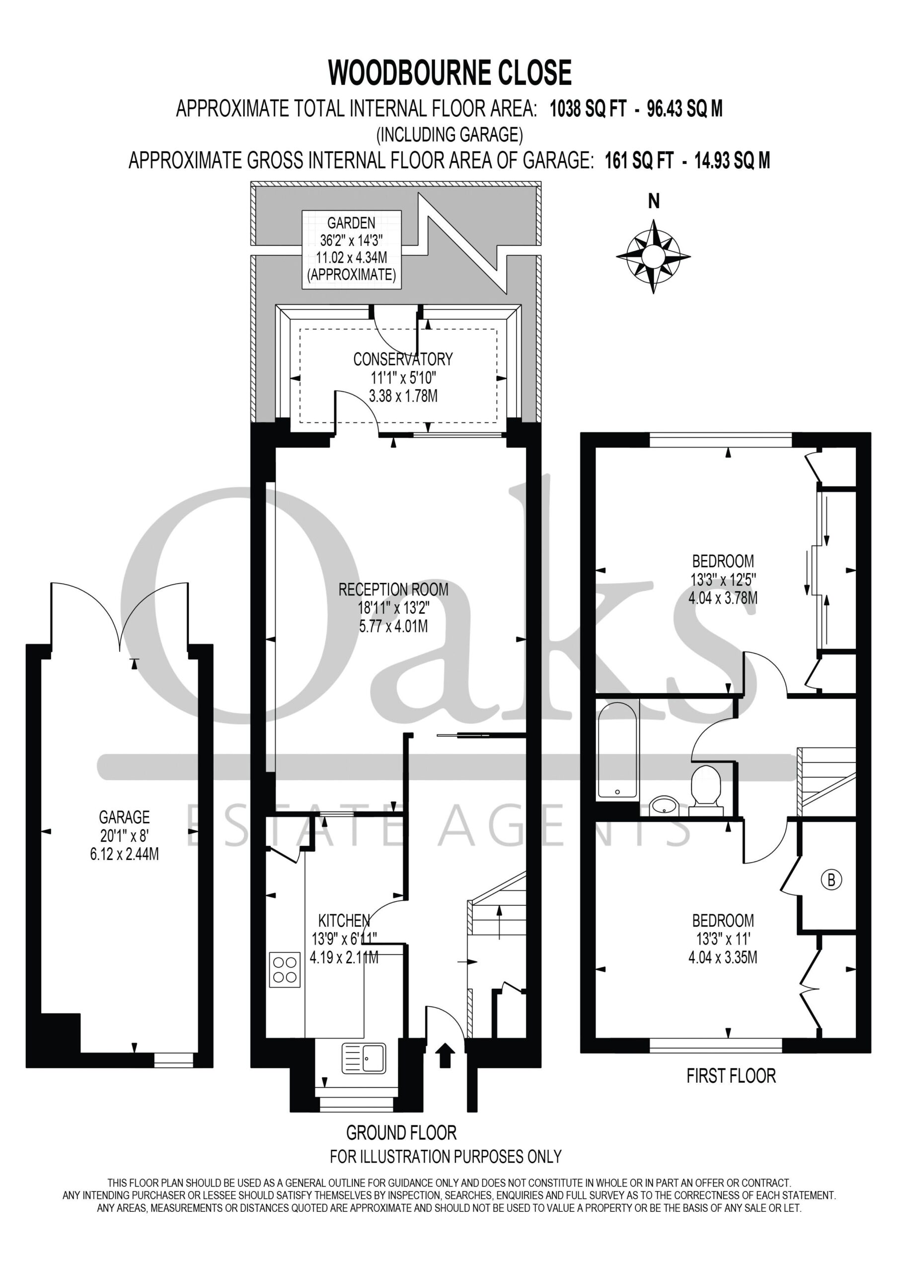
A beautiful two-bedroom house set on a quiet close in Streatham Hill. Lovingly cared for and lived in by current owner, this house comprises; two double bedroom that are flooded with natural light, a well-maintained kitchen, a large family bathroom, and a large living room that leads out to a beautiful private garden.
This wonderful home benefits from a number of great features including a garage and vast internal storage. Large windows flood the property with natural light throughout. This home is ideally located between Streatham and Streatham Hill stations with direct access to Clapham Junction, Balham, London Victoria, and London Bridge.
The shops, bars and restaurants of Streatham High Road are within easy reach of the property as are the wide, open, and leafy spaces of both Tooting and Streatham Common.















